Athens Goddess Residences-AG206

Paralimni

€207,000+VAT

About Athens Goddess Residences...

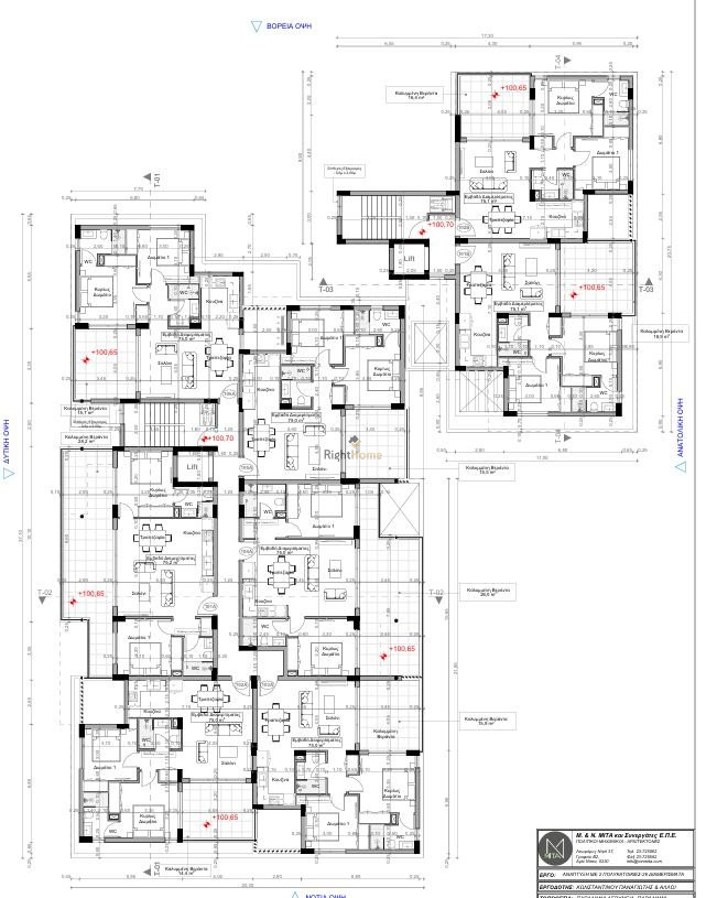
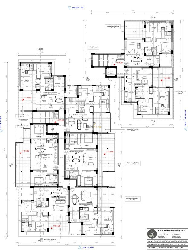
Discover an exceptional living experience in the heart of Paralimni with our exclusive collection of 26 modern apartments. Nestled in a prime location, this stunning development offers a perfect blend of comfort, convenience, and breathtaking sea views.

Designed for contemporary living, each apartment boasts stylish interiors, spacious layouts, and high-quality finishes. Residents will enjoy access to a beautiful communal swimming pool, creating the perfect setting for relaxation and leisure.

Situated in a peaceful yet well-connected area, this development provides easy access to all essential amenities, including shops, restaurants, cafes, and entertainment options. With the stunning coastline just a short drive away, you can enjoy the best of both worlds—tranquil surroundings and vibrant city life.

Whether you're looking for a permanent residence, a holiday home, or an investment opportunity, this development in Paralimni is the ideal choice.

  • Type Apartment
  • Bedrooms 2
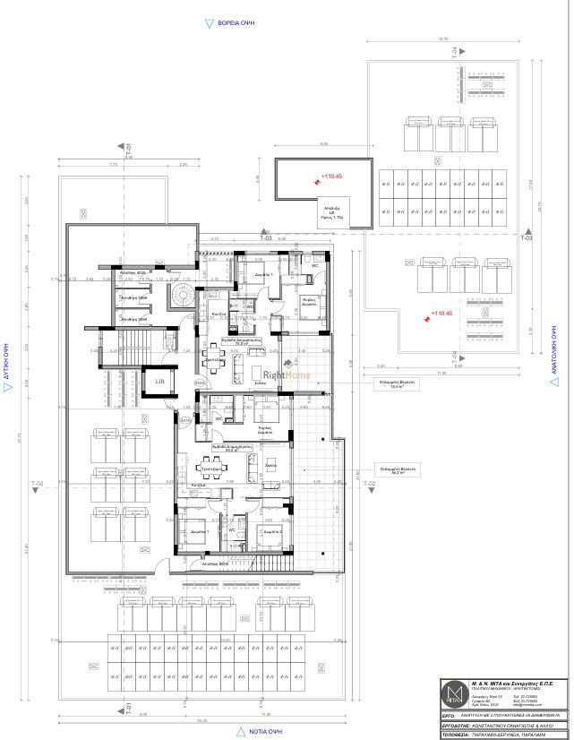
  • Floors 4
  • Parking 1
  • Status Off plan
  • Year of construction 2025
  • Energy efficiency A
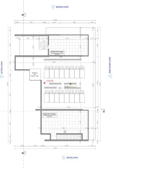
  • Covered 75 m²
  • Covered veranda 15.7 m²

Facilities

  • Parking, Uncovered
  • Pool, Communal
  • Storage
  • Solar water heater
  • Solar photovoltaic panels, Provision

Features

  • Guest WC
  • Quiet area
  • Granite countertops
  • Tile flooring
  • Ceramic tiles
  • Rental potential
  • En suite shower
  • Luxury specifications
  • Modern design
  • Sea view
  • Near amenities
  • Double glazing
  • Open plan
  • Investment opportunity
  • Painted
  • Balcony, front
  • Fitted wardrobes
  • Garbage disposal
  • Connected to electric mains
  • Municipal water/sewage
  • Elevated
  • Combined kitchen and dining area
  • High ceilings
  • Easy access to main roads
  • Sound insulation
  • Thermal insulation
  • Central TV system
  • Electric car charger (provision)

Distances

  • Amenities 400 m
  • Airport 49 km
  • Sea 3 km
  • Public transport 400 m
  • Schools 400 m
  • Request info
  • Schedule a tour
Thank you for your message!

Similar properties

Mystale Residences

Mystale Residences-MY204

€225,000+VAT
  • Agioi Anargiroi
Mystale Residences

Mystale Residences-MY201

€225,000+VAT
  • Agioi Anargiroi
Mystale Residences

Mystale Residences-MY104

€210,000+VAT
  • Agioi Anargiroi